flat-plan
flat-plan
wind-rose
Стоимость

8 046 500

Стоимость за м?

133 000

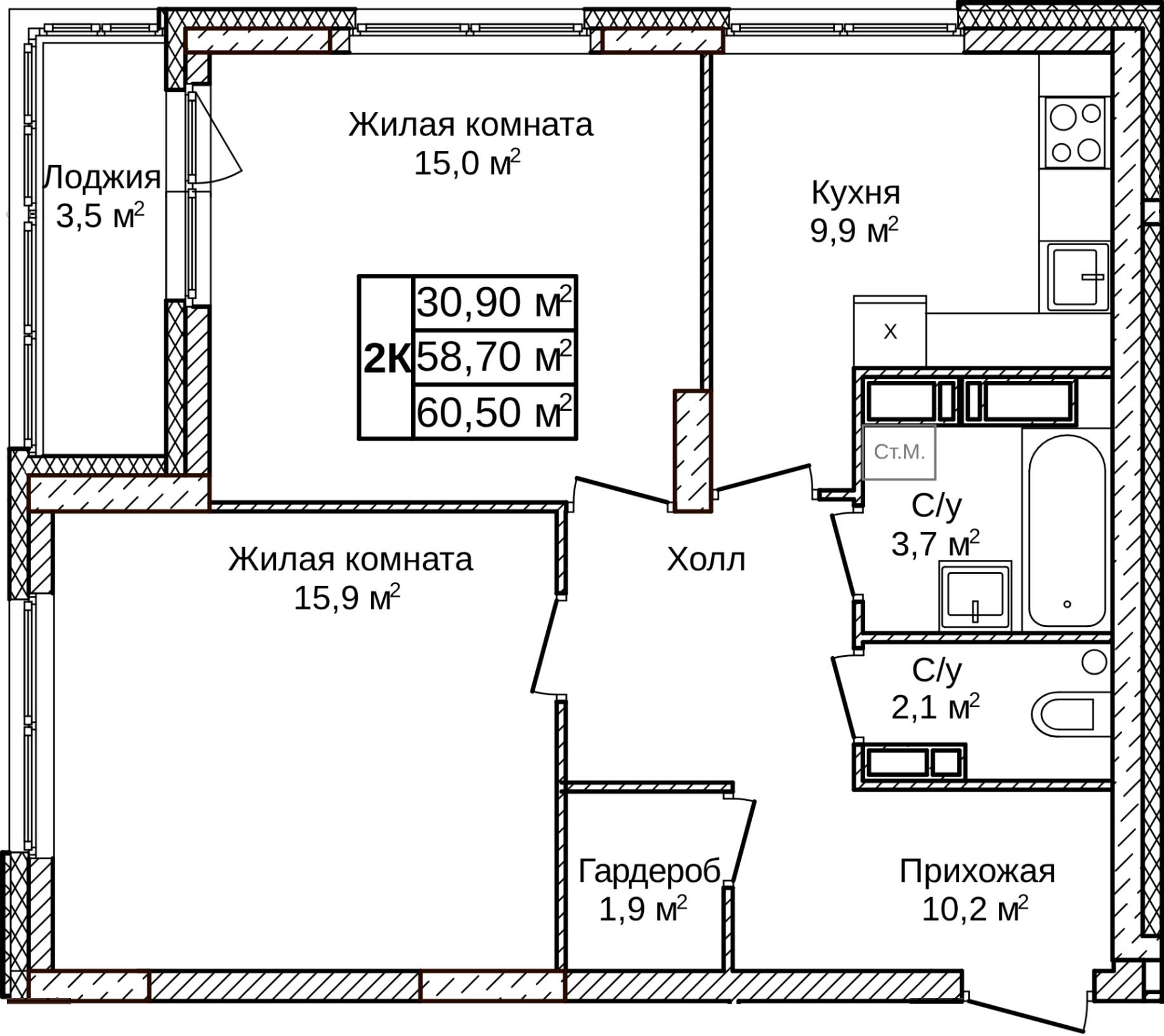
Площадь

60.5 м2

Этаж

21

Дом
Дом 1
Срок сдачи:
4 квартал 2027
Вид из окон:
Двор, дом №2
Отделка:
Отдел продаж
г. Нижний Новгород ул.Полтавская 26, этаж 1, каб.101

пн-чт: 09:00—18:00 пт: 09:00—17:00

обед: 12:00—12:48 сб-вс: Выходной

Отделка
В наших жилых комплексах каждую квартиру мы передаем владельцам с предчистовой отделкой, что позволяет вам сразу приступить к созданию уникального интерьера.
Что вас ждет:
  •  
    Стены:
    Оштукатуренные и готовые к декоративной отделке.
  •  
    Полы:
    Выравнивающая цементная стяжка, а потолок уже готов для установки натяжного полотна.
  •  
    Окна:
    ПВХ-профиль с двухкамерным стеклопакетом, а лоджии оснащены одинарным остеклением в переплёте из ПВХ.
  •  
    Двери:
    Установлена надежная металлическая входная дверь для вашей безопасности.
  •  
    Водоснабжение:
    Горизонтальная разводка от этажного коллектора с выводами в ванные комнаты и кухни для горячего и холодного водоснабжения.
  •  
    Канализация:
    Стояки уже установлены для подключения сантехнических приборов.
  •  
    Отопление:
    Стальные панельные радиаторы обеспечат тепло в вашем доме, система отопления с горизонтальной разводкой труб.
  •  
    Электрика:
    Полностью выполненная разводка электрических проводов, установлены выключатели и розетки.
Теперь вам остается только выбрать стиль интерьера, мебель, текстиль, посуду и бытовую технику. Мы позаботились о всех сложных и шумных этапах, чтобы сделать ваш переход от получения ключей до новоселья максимально комфортным и быстрым.